Quadrilocale in vendita

Pescara, Via Santina Campana - Pescara Colli
€ 200.000
4 locali 4 locali
129 Mq 129 Mq
2 bagni 2 bagni

Quadrilocale in vendita

Pescara, Via Santina Campana - Pescara Colli

Descrizione annuncio

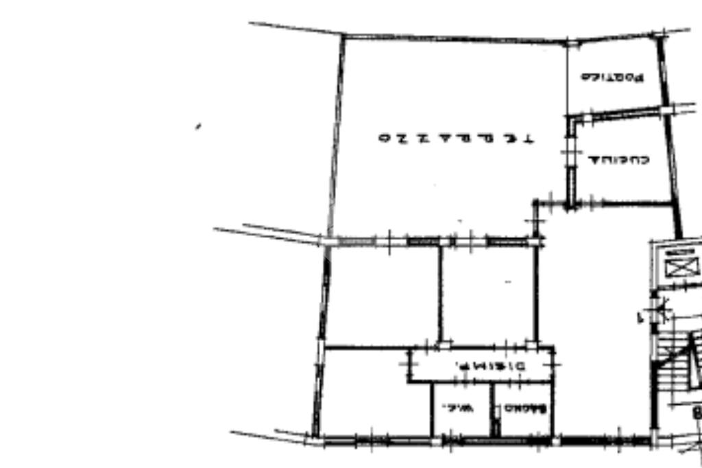
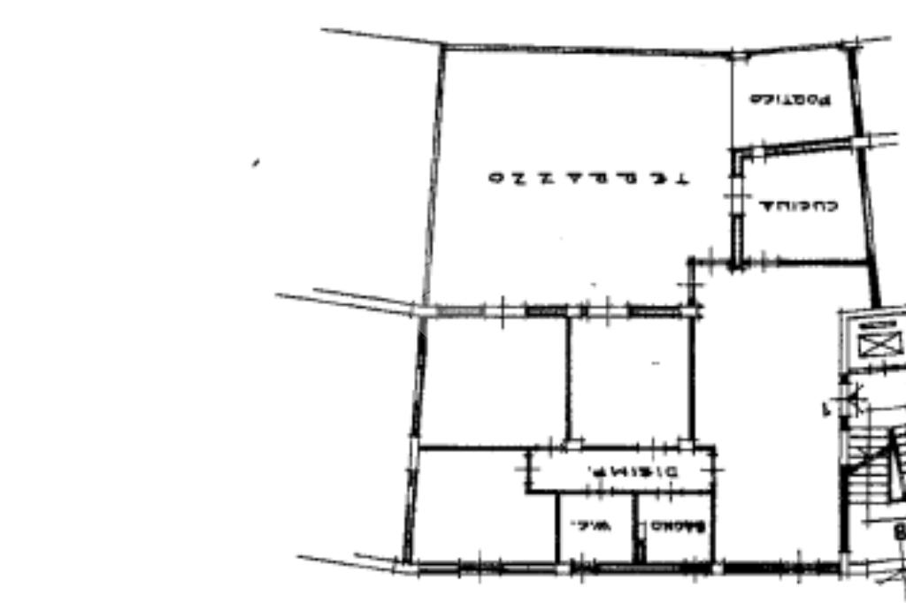
Pescara Colli, proponiamo un appartamento in vendita che coniuga spazio e funzionalità.

Situato al piano rialzato di una palazzina costruita nel 1990, l'immobile si estende su una superficie di 129 mq, offrendo ambienti ben distribuiti.

Il soggiorno accogliente è ideale per momenti di relax e convivialità, mentre la cucina abitabile permette di preparare e gustare i pasti in un ambiente confortevole.

Le tre camere da letto, ampie e luminose, garantiscono il giusto spazio per tutta la famiglia.

I due bagni finestrati, uno dotato di doccia e l'altro di vasca, assicurano praticità e comfort.

Un ampio terrazzo offre uno spazio esterno perfetto per godere delle belle giornate.

Completa la proprietà un comodo box auto che rappresenta un valore aggiunto.

Un'opportunità da non perdere.

Mostra tutto

Nelle vicinanze

Trasporto pubblico Trasporto pubblico
stazione di Pescara Centrale
stazione di Pescara Centrale
2,0 Km
stazione di Pescara Porta Nuova
stazione di Pescara Porta Nuova
2,8 Km
Via Colle Innamorati
Via Colle Innamorati
150 m
Via Francia, civ.25
Via Francia, civ.25
270 m
Ricariche auto elettriche Ricariche auto elettriche
Centro Commerciale L'Arca
1,0 Km
Conad del Circuito
2,1 Km
Pescara Diaz | EnelX
2,2 Km
Concessionario Nissan ORIENTE SPA
2,2 Km
Best Western Hotel Plaza
2,3 Km
Scuole Scuole
Scuola Primaria "Colli"
370 m
Scuola Elementare Bosco CEP
1,1 Km
Scuole
1,1 Km
I.P.S.I.A.S. "Di Marzio-Michetti"
1,4 Km
Liceo Scientifico "Leonardo da Vinci"
1,4 Km
Farmacia Farmacia
Parafarmacia LB Farma
170 m
D.ssa Raffaella Martella
670 m
Farmacia Dei Colli
1,0 Km
Parafarmacia Sopharma
1,2 Km
Farmacia Massari
1,2 Km
Ospedali Ospedali
Ospedale Civile Santo Spirito
1,5 Km
Casa di Cura Privata "Pierangeli"
1,6 Km
istituto Don Orione
2,0 Km
Istituto Don Orione
2,0 Km
AUSL Pescara Nord
2,3 Km
Supermercati Supermercati
Lidl
530 m
Conad
580 m
Simply
1,1 Km
EuroSpin
1,4 Km
Stella d'Asia
1,4 Km
Negozi Negozi
Point Break
1,1 Km
Tutto Conveniente
1,1 Km
Gastronomia Damangiare
1,1 Km
Charlotte 2
1,2 Km
Dolce Forno
1,2 Km
Bar Bar
EleRi Cafè
720 m
Bar Marzoli
840 m
Bar
1,0 Km
Joseph's Bar
1,1 Km
Bar Europa
1,4 Km
Ristoranti Ristoranti
Il Tiempo
350 m
Pizzeria Ottavio
380 m
La Terrazza Verde
420 m
Taverna Antica
420 m
L'Oca Bianca
460 m
Mostra tutto

Caratteristiche

Rif.:
61120729
Piano:
Rialzato di 4 con ascensore
Totale piani:
4
Box:
1
Terrazzi:
1
Camere da letto:
3
Mostra tutto
Prezzo Prezzo
€ 200.000
Rata mutuo Rata mutuo
€ 924 / mese
Spese annue Spese annue
€ 800
Proponi il tuo prezzoProponi il tuo prezzo

Classe Energetica

G
G
G
G
G
G
G
G
G
EP globale non rinnovabile:
112.00 kW h/m² anno
EP globale rinnovabile:
112.00 kW h/m² anno
EP invernale del fabbricato:
EP estiva del fabbricato:
Anno di costruzione:
1990
Riscaldamento:
Autonomo
Tipo impianto:
A radiatori
Tipo alimentazione:
Metano

Ti interessa visionare l'immobile?

Fissa un appuntamento  Fissa un appuntamento

Richiedi informazioni

* Questi campi sono obbligatori

Calcola il tuo mutuo

Semplice e senza impegno
Anticipo

( % )
Mutuo

( % )

pochi semplici passi

inserisci i tuoi dati
Questionario completato
Grazie per aver richiesto un appuntamento senza impegno con un nostro Consulente del Credito e Assicurativo.

Hai inserito correttamente tutti i dati necessari e a breve riceverai una e-mail con un link da convalidare per inviare i tuoi dati.
Affiliato
Mts Mediazioni Srls
Corso Umberto I°, 590 65015 Montesilvano (PE)

Il nostro staff


  • Laura Pierfelice
    Coordinatrice

  • Giacinto Tarantino
    Affiliato

  • Giancarlo Carli
    Affiliato

  • Michele Boccardi
    Responsabile

  • Candela Abendano
    Collaboratrice

  • Giorgia Di Berardino
    Coordinatrice

  • Fabrizio Maione
    Collaboratore
Corso Umberto I°, 590 65015 Montesilvano (PE)
Zona: Montesilvano - Santa Filomena
Mostra su mappa
Orari: lavorativi 09.00 - 13.00 /15.30 - 20.00; sabato 09.00 - 13.00 / 15.30 - 18.00; domenica su appuntamento.
Affiliato
Mts Mediazioni Srls
Corso Umberto I°, 590 65015 Montesilvano (PE)

2025 Tecnocasa Franchising S.p.A. - P. IVA 08365160152 - Via Monte Bianco 60/A 20089 Rozzano (MI). Ogni agenzia ha un proprio titolare ed è autonoma. Privacy policy | Policy utilizzo | Cookie policy