Quadrilocale in vendita

Pescara, Via Monte Faito - Pescara Ospedale
€ 165.000
4 locali 4 locali
102 Mq 102 Mq
2 bagni 2 bagni

Quadrilocale in vendita

Pescara, Via Monte Faito - Pescara Ospedale

Descrizione annuncio

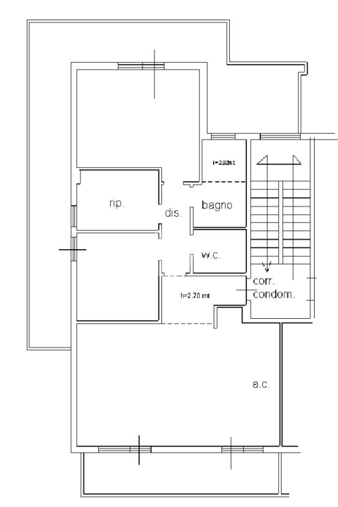
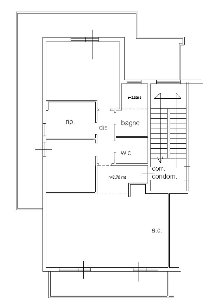
Pescara Ospedale, proponiamo in vendita un appartamento di 102 mq .

L'immobile, ristrutturato nel 2006, offre un'accogliente zona giorno con ingresso che conduce a un luminoso soggiorno dotato di angolo cottura.

La disposizione interna comprende tre camere da letto, ideali per famiglie o per chi necessita di spazi aggiuntivi.

Sono presenti due bagni, che garantiscono comfort e praticità.

L'appartamento dispone di due balconi di cui uno semiperimetrale.

Completa la proprietà un box auto, che offre una soluzione pratica per il parcheggio.

L'aria condizionata assicura un ambiente confortevole in ogni stagione.

Questa soluzione abitativa rappresenta un'opportunità interessante per chi cerca una casa funzionale e ben collegata ai servizi della città.

Mostra tutto

Nelle vicinanze

Trasporto pubblico Trasporto pubblico
stazione di Pescara Centrale
stazione di Pescara Centrale
1,2 Km
stazione di Pescara Porta Nuova
stazione di Pescara Porta Nuova
1,8 Km
Via Monte Pagano
Via Monte Pagano
120 m
Via Monte Faito
Via Monte Faito
120 m
Pescara San Marco
Pescara San Marco
2,6 Km
Ricariche auto elettriche Ricariche auto elettriche
Conad del Circuito
1,1 Km
Centro Commerciale L'Arca
1,4 Km
Best Western Hotel Plaza
1,4 Km
LIDL Pescara
1,7 Km
EnelX Parcheggio Aterno-Manthonè
1,8 Km
Scuole Scuole
Scuola Elementare Bosco CEP
560 m
Scuole
600 m
I.P.S.I.A.S. "Di Marzio-Michetti"
650 m
Scuola Paritaria Sorelle della Misericordia "Lucilla Ambrosi"
880 m
Scuola Paritaria Suore della Presentazione
900 m
Farmacia Farmacia
D.ssa Raffaella Martella
440 m
Farmacia Dr. D'Ottavio
650 m
Di Giamberardino
730 m
Farmacia Dott. Pennese
780 m
Parafarmacia LB Farma
780 m
Ospedali Ospedali
Ospedale Civile Santo Spirito
510 m
Casa di Cura Privata "Pierangeli"
680 m
istituto Don Orione
1,1 Km
Istituto Don Orione
1,1 Km
AUSL Pescara Nord
2,2 Km
Supermercati Supermercati
Conad
190 m
Lidl
550 m
EuroSpin
610 m
Pepi Discount
650 m
Stella d'Asia
650 m
Negozi Negozi
Point Break
120 m
Tutto Conveniente
480 m
Gastronomia Damangiare
510 m
Charlotte 2
550 m
Dolce Forno
580 m
Bar Bar
Joseph's Bar
90 m
Bar Marzoli
170 m
Bar
310 m
EleRi Cafè
390 m
Codice a BARre
680 m
Ristoranti Ristoranti
Il Rifugio
100 m
LocanA ai Marinaretti
160 m
Pizzeria Piz Art
250 m
Pizzeria California (Bracerria)
420 m
Pizzeria Lupelli
570 m
Mostra tutto

Caratteristiche

Rif.:
61118038
Piano:
1 di 1 (Piano medio)
Box:
1
Balconi:
2
Camere da letto:
3
Arredamento:
Assente
Mostra tutto
Prezzo Prezzo
€ 165.000
Rata mutuo Rata mutuo
€ 763 / mese
Spese annue Spese annue
€ 0
Proponi il tuo prezzoProponi il tuo prezzo

Classe Energetica

G
G
G
G
G
G
G
G
G
EP globale non rinnovabile:
112.00 kW h/m² anno
EP globale rinnovabile:
112.00 kW h/m² anno
EP invernale del fabbricato:
EP estiva del fabbricato:
Anno di costruzione:
1980
Riscaldamento:
Autonomo
Tipo impianto:
A radiatori
Tipo alimentazione:
Metano

Ti interessa visionare l'immobile?

Fissa un appuntamento  Fissa un appuntamento

Richiedi informazioni

* Questi campi sono obbligatori

Calcola il tuo mutuo

Semplice e senza impegno
Anticipo

( % )
Mutuo

( % )

pochi semplici passi

inserisci i tuoi dati
Questionario completato
Grazie per aver richiesto un appuntamento senza impegno con un nostro Consulente del Credito e Assicurativo.

Hai inserito correttamente tutti i dati necessari e a breve riceverai una e-mail con un link da convalidare per inviare i tuoi dati.
Affiliato
Mts Mediazioni Srls
Corso Umberto I°, 590 65015 Montesilvano (PE)

Il nostro staff


  • Laura Pierfelice
    Coordinatrice

  • Giacinto Tarantino
    Affiliato

  • Giancarlo Carli
    Affiliato

  • Michele Boccardi
    Responsabile

  • Candela Abendano
    Collaboratrice

  • Giorgia Di Berardino
    Coordinatrice

  • Fabrizio Maione
    Collaboratore
Corso Umberto I°, 590 65015 Montesilvano (PE)
Zona: Montesilvano - Santa Filomena
Mostra su mappa
Orari: lavorativi 09.00 - 13.00 /15.30 - 20.00; sabato 09.00 - 13.00 / 15.30 - 18.00; domenica su appuntamento.
Affiliato
Mts Mediazioni Srls
Corso Umberto I°, 590 65015 Montesilvano (PE)

2025 Tecnocasa Franchising S.p.A. - P. IVA 08365160152 - Via Monte Bianco 60/A 20089 Rozzano (MI). Ogni agenzia ha un proprio titolare ed è autonoma. Privacy policy | Policy utilizzo | Cookie policy